Để giúp không gian nhà 3 tầng tận hưởng được tối đa nguồn ánh sáng và gió tự nhiên ngoài trời thì việc trang trí thiết kế mặt tiền bằng các vật liệu như gạch bông gió đang là xu hướng khi xây dựng nhà hiện đại
Nội dung chính
Những thiết kế nhà phố 3 tầng đẹp có thiết kế mặt tiền sử dụng bông gió không chỉ tăng thêm vẻ đẹp cho ngôi nhà mà còn giúp gia chủ tiết kiệm được chi phí sử dụng cho năng lượng điện chiếu sáng.
Hôm nay, Xây Dựng Quốc Bảo xin giới thiệu tới quý khách hàng mẫu nhà phố 3 tầng đẹp tại Đồng Nai với thiết kế hiện đại nổi bật ấn tượng giữa thành phố Cùng tham khảo nhé!

Thông tin công trình
- Dự án: Nhà phố 3 tầng
- Mã số: NP22140
- Địa chỉ: TP. Thủ Dầu Một, T. Bình Dương
- Diện tích xây dựng: 6m x21,5m
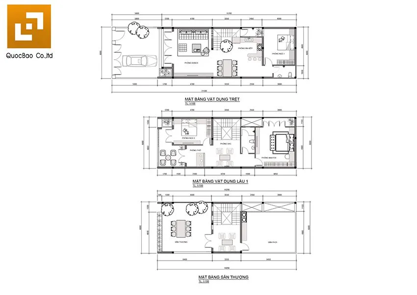
Công năng sử dụng nhà phố 3 tầng
- Tầng trệt: Sân trước, Phòng Khách, Bếp + ăn, Phòng ngủ 1, Nhà vệ sinh
- Lầu 1: Phòng sinh hoạt chung, Phòng ngủ master, Phòng ngủ 2, Phòng thờ, Nhà vệ sinh
- Lầu 2: Sân phơi, Sân thượng
Mặt tiền ngôi nhà 3 tầng thu hút ánh nhìn bởi sự trẻ trung đầy sáng tạo
Không gian ngoại thất ngôi nhà 3 tầng thu hút mọi ánh nhìn và vô cùng nổi bật bởi sự kết hợp màu sắc, tiểu cảnh, sân vườn với hệ bông gió trang trí đẹp mắt



Sử dụng tone màu trắng chủ đạo xen lẫn màu xám của gạch ốp tường giúp cho tổng thể ngôi nhà thêm phần tinh tế hơn.


Sử dụng gạch lát sân có độ nhám giảm trơn trượt, cùng với tiểu cảnh sân vườn xanh mát

Để khiến không gian thêm phần hài hòa và xanh mát, KTS đã thiết kế 1 ban công phụ ở lầu 1 được xen kẽ nhiều chậu hoa, cây cảnh
Ở các khu vực sân thượng và ban công đều được trồng cây và hoa nhằm mục đích mang tới bầu không khí trong lành và dịu nhẹ giúp các thành viên có nơi nghỉ ngơi, thư giãn.
Tường rào cổng chính được KTS sử dụng cửa sắt màu đen huyền bí, kết hợp với mái hiên lợp kính trong suốt ngoài chức năng bảo vệ an toàn cho gia chủ mà còn giúp ngôi nhà thêm phần kín đáo, riêng tư.
Sự sắp xếp công năng đầy khoa học, chuẩn phong thủy của ngôi nhà 3 tầng
Ngôi nhà phố 3 tầng không chỉ ấn tượng về thiết kế kiến trúc ngoại thất với vẻ đẹp tự do, phóng khoáng mà mặt bằng công năng các tầng cũng được các KTS tính toán và sắp xếp rất khoa học, tiện nghi, chuẩn phong thủy.
- Tầng trệt: Sân trước, Phòng Khách, Bếp + ăn, Phòng ngủ 1, Nhà vệ sinh
- Lầu 1: Phòng sinh hoạt chung, Phòng ngủ master, Phòng ngủ 2, Phòng thờ, Nhà vệ sinh
- Lầu 2: Sân phơi, sân thượng

Ở tầng trệt bước ngoài là khoảng sân rộng phía trước dùng làm khu vực để xe và sân vườn được bố trí nhiều cây xanh mát.
Bước qua hệ 3 bậc tam cấp chúng ta sẽ gặp không gian phòng khách rộng rãi. Với nội thất hiện đại, ti vi được thiết kế treo tường giúp không gian rộng rãi hơn.
Đi tiếp không gian phòng khách là khu vực phòng bếp ăn được bố trí liền kề với lối thông tầng nên không gian thoáng rộng hơn.
Phía cuối là phòng ngủ 1 và nhà vệ sinh sử dụng chung cho cả gia đình
Đi lên lầu 2 ngay lối cầu thang sẽ là không gian sinh hoạt chung của cả gia đình sum họp nghỉ ngơi sau những giờ làm việc căng thẳng.
Mặt tiền phía trước lầu 2 là không gian phòng ngủ 2, đối diện là không gian phòng thờ phía trước có khoảng ban công nhỏ
Phía sau được bố trí 1 phòng ngủ master rộng rãi với thiết kế nhà vệ sinh chung ở giữa cho các thành viên tiện sinh hoạt
Ở lầu 3 là khoảng sân thượng và sân phơi rộng rãi
Như vậy, Xây Dựng Quốc Bảo vừa chia sẻ đến quý khách hàng phối cảnh 3D và mặt bằng công năng mẫu nhà 3 tầng hiện đại tại TP. Thủ Dầu Một – Bình Dương. Nếu quý yêu thích phong cách thiết kế của mẫu thiết kế nhà phố 3 tầng này, hãy liên hệ với chúng tôi qua số 0942.788889 – 0982.788889 hoặc facebook công ty Xây dựng Quốc Bảo để được tư vấn miễn phí.








