Mỗi lần cầm bút vẽ nên một ngôi nhà, tôi luôn tâm niệm rằng kiến trúc sư không chỉ thiết kế không gian, mà đang kiến tạo nên những xúc cảm. Với dự án “Pink Villa” nằm trên khuôn viên đất 12x14m này, câu chuyện mà chúng tôi muốn kể là sự cân bằng hoàn hảo giữa nhịp sống hiện đại hối hả và sự bình yên, tĩnh tại của một khu nghỉ dưỡng cao cấp ngay tại nhà.
Không phô trương cầu kỳ bằng những phù điêu cổ điển, ngôi biệt thự này chinh phục người nhìn bằng những hình khối mạnh mẽ, tỷ lệ vàng trong bố cục và sự tinh tế đến từng chi tiết nội thất. Hãy cùng tôi dạo bước khám phá từng ngóc ngách của không gian sống đẳng cấp mà xây dựng Quốc Bảo thiết kế và xây dựng.

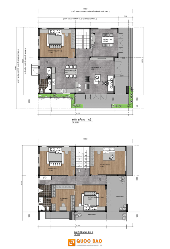
Phân tích cách bố trí mặt bằng công năng
Là một kiến trúc sư, tôi luôn đặt tính “công năng” đi đôi với “thẩm mỹ”. Một ngôi nhà đẹp trước hết phải là một ngôi nhà thuận tiện cho sinh hoạt. Với diện tích sàn lý tưởng, tôi đã quy hoạch công năng theo dòng chảy sinh hoạt tự nhiên của các thành viên trong gia đình.

Tầng trệt – Không gian kết nối:
Tầng trệt bao gồm: phòng khách, phòng bếp + ăn, phòng thờ, phòng ngủ, nhà vệ sinh
Bước qua sảnh chính, chúng ta được chào đón bởi một không gian mở liên hoàn rộng lớn. Phòng khách 30m2 được đặt tại vị trí trung tâm, đóng vai trò là trái tim của ngôi nhà. Từ đây, tầm nhìn được giải phóng hoàn toàn sang khu vực Bếp và Phòng ăn (20m2). Khu vực được nối liền, giúp các thành viên trong gia đình có thể nói chuyện với nhau khi đang ở 2 khu vực.
Việc loại bỏ các vách ngăn cứng nhắc giúp tăng cường sự tương tác giữa các thành viên: người nấu bếp vẫn có thể trò chuyện với người xem TV. Đặc biệt, Phòng thờ 16.5m2 được bố trí trang trọng ngay tầng trệt, hướng ra mặt tiền, thể hiện lòng thành kính của gia chủ nhưng vẫn đảm bảo sự riêng tư cần thiết. Ngoài ra, một phòng ngủ Master dành cho Ông Bà (22.5m2) với WC khép kín được đặt kín đáo phía sau, đảm bảo sự yên tĩnh tuyệt đối cho người lớn tuổi.
Tầng 1 – Không gian nghỉ ngơi riêng tư:
Tầng 1 bao gồm: 3 phòng ngủ, 1 phòng thay đồ, ban công.
Di chuyển theo cầu thang bộ lên tầng, chúng ta bước vào thế giới riêng tư của gia đình trẻ. Mặt bằng tầng 1 được chia thành 3 phòng ngủ rộng rãi. Trong đó, 2 phòng ngủ Master (khoảng 22m2/phòng) đều sở hữu cửa sổ thông thoáng và tiện nghi. Phòng ngủ thứ 3 (18m2) dành cho con trai được bố trí với cửa lớn dẫn ra ban công, có phòng thay đồ và wc riêng biệt.
Điểm đắt giá nhất của tầng này chính là hệ thống ban công chạy dọc nhà. Mỗi buổi sáng, các thành viên chỉ cần mở cửa là có thể chạm vào thiên nhiên, hít thở khí trời trong lành.
Kiến trúc tổng quan của biệt thự 12x14m Pink Villa
Để tạo nên một tác phẩm kiến trúc bền vững với thời gian, chúng tôi đã lựa chọn ngôn ngữ thiết kế Hiện đại (Modernism) làm chủ đạo. Tuy nhiên, sự sang trọng của Pink Villa không chỉ dừng lại ở hình khối, mà được kể qua câu chuyện của sự kết nối giữa con người và thiên nhiên ngay từ những điểm chạm đầu tiên.
Ấn tượng thị giác bắt đầu ngay từ hệ thống tường rào kiên cố nhưng đầy tính nghệ thuật. Chúng tôi thiết kế mảng tường đá nguyên khối khắc tên “PINK VILLA” tạo sự nhận diện thương hiệu riêng biệt. Thay vì xây kín mít, hệ thống hàng rào sắt hộp sơn tĩnh điện đen chạy dọc mặt tiền được sử dụng như một lớp “vách ngăn thở”, vừa đảm bảo an ninh, vừa giúp khoe khéo vẻ đẹp của khu vườn bên trong.

Trước khi bước vào nhà, gia chủ sẽ đi qua một khoảng sân vườn phía trước được quy hoạch tỉ mỉ. Đây là lớp đệm sinh thái giúp lọc bụi, giảm ồn và điều hòa không khí. Sự kết hợp giữa lối đi lát đá và cây bụi tầm thấp tạo nên cảm giác thư thái như đang bước vào một resort thực thụ.
Điểm đắt giá nhất trong kiến trúc ngoại thất chính là hệ cửa kính trượt khổ lớn (Panorama) xuyên suốt từ tầng trệt lên lầu. Đặc biệt, tại khu vực sân thượng (ban công lầu 1), chúng tôi sử dụng hệ cửa lùa 4 cánh kịch trần độc đáo kết nối trực tiếp phòng ngủ Master với thiên nhiên. Khi mở rộng tối đa, ranh giới giữa trong và ngoài bị xóa bỏ, biến phòng ngủ thành một đài quan sát với tầm nhìn 180 độ tuyệt đẹp.
Kết thúc cho bản hòa ca kiến trúc là hệ mái bằng hiện đại với các đường viền sắc sảo. Phần tum thang được xử lý khéo léo thành một khối hình học vững chãi, không chỉ che chắn cầu thang mà còn góp phần cân bằng tỉ lệ vàng cho mặt đứng. Chúng tôi cũng tích hợp các rãnh thu nước âm và lớp cách nhiệt công nghệ cao trên mái, đảm bảo ngôi nhà luôn mát mẻ và bền bỉ trước khí hậu nhiệt đới.

Khám phá không gian nội thất của Pink Villa
Nếu kiến trúc là bộ khung xương, thì nội thất chính là linh hồn của ngôi nhà. Bước vào bên trong Pink Villa, bạn sẽ choáng ngợp bởi sự sang trọng toát lên từ những vật liệu cao cấp nhất, được phối trộn theo phong cách Modern Luxury. Chúng tôi không chỉ lấp đầy không gian bằng đồ đạc, mà chúng tôi điêu khắc nên những khoảng trống, nơi ánh sáng và vật liệu cùng nhau kể câu chuyện về sự sang trọng và bình yên.
Phân tích mặt bằng công năng tầng trệt

Tầng 1 được gia chủ sắp xếp và bố trí đầy đủ các công năng: phòng khách, phòng bếp, phòng vệ sinh, phòng ngủ và phòng thờ.
Phòng Khách: Bản Giao Hưởng của ngôi nhà
Bước qua cánh cửa chính, phòng khách hiện ra như một tuyên ngôn về đẳng cấp của gia chủ. Điểm nhấn thị giác mạnh mẽ nhất mà chúng tôi tâm đắc chính là mảng tường tivi ốp đá Marble trắng vân mây khổ lớn. Những đường vân đá tự nhiên uốn lượn như dòng chảy của nước, phá vỡ sự tĩnh lặng của những bức tường phẳng, mang lại vẻ đẹp vừa hùng vĩ vừa tinh tế. Để cân bằng lại sự lạnh lẽo của đá, hệ vách ngăn, tủ trưng bày gỗ màu ghi xám được bố trí hai bên, tạo nên sự chuyển tiếp vật liệu mềm mại và hài hòa.
Ở trung tâm căn phòng, bộ sofa nỉ nhung cao cấp màu xám lông chuột được sắp đặt theo hình chữ L rộng rãi, mời gọi sự sum vầy. Tuy nhiên, sự “đắt giá” nằm ở cặp ghế thư giãn bọc da màu cam. Đây là gam màu điểm nhấn táo bạo, phá vỡ sự đơn điệu của tone màu trung tính, thổi bùng lên sức sống và sự tươi trẻ cho không gian. Chúng tôi chọn bàn trà đá đôi với hình khối organic mềm mại, giúp xóa nhòa những góc cạnh vuông vức của kiến trúc tổng thể.
Hệ thống ánh sáng cũng được tính toán kỹ lưỡng như một sân khấu nghệ thuật. Trần thạch cao giật cấp nhẹ nhàng kết hợp với hệ đèn ray nam châm (magnetic track light) âm trần và đèn LED profile chạy dọc, tạo ra những vệt sáng định hướng hiện đại. Một chiếc quạt trần cánh gỗ với thiết kế tối giản không chỉ giúp điều hòa luồng khí đối lưu mà còn là chi tiết trang trí đậm chất nhiệt đới.

Bếp & Phòng Ăn: Nơi Giữ Lửa Yêu Thương
Không gian bếp được kết nối liên thông hoàn toàn với phòng khách theo thủ pháp “mượn không gian”, giúp tầm nhìn được giải phóng tối đa. Hệ tủ bếp chữ L được thiết kế kịch trần, sử dụng gỗ công nghiệp MDF chống ẩm phủ Acrylic bóng gương màu xám ghi. Bề mặt bóng loáng của Acrylic không chỉ dễ dàng vệ sinh mà còn phản chiếu ánh sáng, tạo cảm giác căn bếp rộng hơn so với diện tích thực tế. Khu vực tường bếp (backsplash) và mặt bàn đều được ốp đá Vicostone trắng, đảm bảo sự sạch sẽ và bền bỉ trước dầu mỡ, nhiệt độ.

Trái tim của khu bếp chính là chiếc bàn. Chân bàn được chúng tôi thiết kế tỉ mỉ với các đường chạy rãnh nan sóng dọc, bọc đá cẩm thạch sang trọng. Đây vừa là nơi soạn đồ ăn, vừa là quầy bar mini để gia chủ nhâm nhi ly rượu vang vào mỗi tối. Phía trên bàn đảo, bộ ba đèn thả trần bằng thủy tinh màu hổ phách với hình dáng điêu khắc thả rơi tự do, tạo nên bầu không khí lãng mạn, ấm cúng.
Bộ bàn ăn 6 ghế bọc da bò màu nâu đất được đặt ngay cạnh cửa sổ lớn hướng ra sân vườn bên hông. Vị trí này giúp những bữa ăn gia đình luôn ngập tràn ánh sáng tự nhiên. Chúng tôi muốn mỗi bữa cơm tại đây không chỉ ngon miệng mà còn là những phút giây thư giãn, ngắm nhìn cây cối xanh tươi bên ngoài, đúng chuẩn phong cách nghỉ dưỡng.
Phòng Thờ: Sự Trang Nghiêm Trong Dòng Chảy Hiện Đại
Phòng thờ là không gian tâm linh quan trọng nhất, được chúng tôi bố trí ở vị trí “tọa cát hướng cát” tại tầng trệt, nhìn ra mặt tiền thoáng đãng. Khác với sự hiện đại của các phòng khác, phòng thờ sử dụng chất liệu gỗ tự nhiên làm chủ đạo để tạo sự ấm cúng và tôn nghiêm. Hệ vách ốp sau ban thờ được chạm khắc hoa văn CNC hình hoa sen cách điệu, mang ý nghĩa thanh tịnh và bình an.

Ánh sáng trong phòng thờ được tiết chế vừa đủ, sử dụng đèn ánh sáng vàng để tạo không khí trầm mặc. Sàn nhà vẫn giữ sự đồng bộ với tổng thể nhưng được trải thêm thảm họa tiết cổ điển ở khu vực hành lễ. Dù diện tích không quá lớn, nhưng nhờ việc bố trí cửa sổ lấy sáng và thông gió hợp lý, không gian này luôn thoáng khí, không bị ám khói hương, giữ được sự thanh tịnh cần thiết cho việc thờ cúng tổ tiên.
Phân tích mặt bằng công năng tầng 1

Tầng 1 được bố trí với 3 phòng ngủ, đây là không gian riêng biệt, yên tĩnh dành cho các thành viên trong gia đình.
Phòng Ngủ Master: Căn Suite Hạng Sang Tại Gia
Bước vào phòng ngủ Master, cảm giác ồn ào của phố thị dường như tan biến, nhường chỗ cho sự tĩnh lặng tuyệt đối. Sàn nhà được lát gạch giả gỗ màu óc chó trầm ấm, lát theo kiểu xương cá để tăng tính thẩm mỹ và chiều sâu không gian. Chiếc giường ngủ bọc nỉ màu ghi sáng với phần tựa lưng êm ái là trung tâm của sự thư giãn, được đặt đối diện với vách tivi treo tường tinh gọn, giúp tối ưu hóa lối đi lại.
Điểm độc đáo nhất trong thiết kế phòng ngủ này là cách chúng tôi phân chia không gian bằng một hệ kệ sách/kệ trang trí kịch trần “xuyên thấu”. Hệ kệ này đóng vai trò như một vách ngăn ước lệ thông minh, tách biệt khu vực giường ngủ và khu vực thay đồ ở phía sau mà không làm bí bách tầm nhìn. Những ô kệ được tích hợp đèn LED hắt sáng, biến những cuốn sách hay đồ decor trở thành những tác phẩm trưng bày nghệ thuật.
Khu vực phòng thay đồ phía sau là giấc mơ của mọi tín đồ thời trang. Hệ tủ áo cánh kính màu trà trong suốt (smoked glass) kết hợp khung nhôm mạ anode cao cấp giúp gia chủ dễ dàng lựa chọn trang phục. Ánh sáng vàng ấm từ bên trong tủ hắt ra qua lớp kính màu trà tạo nên vẻ đẹp lung linh, huyền ảo như một showroom thời trang cao cấp. Bàn trang điểm được bố trí cạnh cửa sổ, tận dụng ánh sáng tự nhiên để việc make-up trở nên hoàn hảo nhất.

Chi phí xây biệt thự trọn gói là bao nhiêu?
Biệt thự hiện đại không chỉ thu hút gia chủ bởi vẻ đẹp tinh tế mà còn bởi khả năng mang lại sự tiện nghi, thoải mái và tiết kiệm chi phí lâu dài. Với sự phát triển không ngừng của các công nghệ xây dựng, biệt thự hiện đại ngày càng trở thành sự lựa chọn lý tưởng cho những gia đình mong muốn có một không gian sống đẳng cấp, tiện nghi và gần gũi với thiên nhiên.
Biệt thự hiện đại không chỉ là một ngôi nhà, mà còn là nơi phản ánh gu thẩm mỹ và phong cách sống của gia chủ, đồng thời là không gian lý tưởng để tận hưởng cuộc sống sau những giờ làm việc căng thẳng.
Thiết kế biệt thự hiện đại sang trọng cùng công năng bố trí khoa học, đúng theo nhu cầu và mong muốn của chủ đầu tư.
Là công ty thiết kế biệt thự đẹp và uy tín tại Đồng Nai và Bình Dương, Xây Dựng Quốc Bảo hiểu rất rõ những nỗi trăn trở của chủ đầu tư. Chúng tôi không ngừng nâng cao giải pháp để phục vụ hiệu quả nhất.
Chi phí xây dựng biệt thự hiện đại 4 tầng là tổng tất cả các chi phí thiết kế, thi công xây dựng, vật tư hoàn thiện và các chi phí pháp lý liên quan. Hiện nay, đơn giá xây nhà trọn gói năm 2025 của Xây Dựng Quốc Bảo là từ 6.500.000 – 7.500.000 VNĐ/m2.

Đặc biệt, Xây Dựng Quốc Bảo hiện đang triển khai chương trình KHUYẾN MÃI khi sử dụng dịch vụ xây nhà trọn gói:
- Miễn phí Thiết kế Kiến Trúc & Kết Cấu
- Giảm 50% Thiết kế Nội Thất
- Miễn phí xin giấy phép xây dựng
Hy vọng mẫu thiết kế tham khảo trên sẽ giúp quý khách hàng có thêm ý tưởng trước khi quyết định thiết kế và thi công nhà ở của mình.
Chúng tôi sẽ cùng khách hàng tạo ra phương án tốt nhất cho công trình cả về thẩm mỹ lẫn công năng.
Bạn đang lên kế hoạch xây nhà? Hãy liên hệ ngay với Xây Dựng Quốc Bảo để nhận tư vấn chi tiết và báo giá chính xác nhất!
📞 Hotline: 0944.788.889 – 0942.788.889
🌐 Website: fanpage Xây Dựng Quốc Bảo








